по Комсомольске-на-Амуре
от производителей
Описание
- Дополнительно возможно заказать защитное стекло к биокамину
- В случае заказа биокамина с поверхностью из шлифованной нержавеющей стали — удорожание на 10%
Описание биокамина:
1) Дистанционное управление с помощью ПУ или смартфона;
2) Встроенный Wi-Fi модуль, который создает точку для управления камином с помощью смартфона или планшета;
3) Сенсорный цветной дисплей с индикацией количества топлива в баке и уровнем пламени;
4) 3 уровня пламени;
5) Встроенные кулеры для охлаждения устройства;
6) Блокировка крышки топливного бака во время его работы;
7) Автоматическое отключение в случае аварийной ситуации;
8) Датчик контроля уровня топлива с индикацией его на дисплее;
9) Датчик СО2;
10) Датчик пролива топлива;
11) Датчик температуры (защита от перегрева);
12) Защита от детей;
13) Технология горения паров биотоплива;
14) Подключение к электросети 220В (как в обычных бытовых приборах);
15) Электроника и бак защищены теплозащитным экраном.
Гарантия 2 года
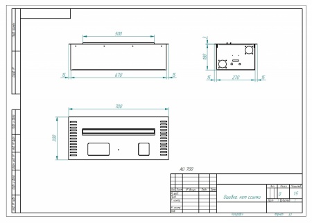
Характеристики:Габариты ВхШхГ: 183x700x300 мм
Материал: Нержавеющая сталь, электроника
Возможная длина биокамина: возможны любые габариты на заказ
Цвет: Черный, металлик или любой другой под заказ
Тип биокамина: Встраиваемый
Объем топки: 2.6 л
Линия огня: 500 мм
Тип управления: Автоматический с ДУ
Габариты
Технические
Для покупки товара в нашем интернет-магазине выберите понравившийся товар и добавьте его в корзину. Далее перейдите в Корзину и нажмите на «Оформить заказ» или «Быстрый заказ».
Когда оформляете быстрый заказ, напишите ФИО, телефон и e-mail. Вам перезвонит менеджер и уточнит условия заказа. По результатам разговора вам придет подтверждение оформления товара на почту или через СМС. Теперь останется только ждать доставки и радоваться новой покупке.
Оформление заказа в стандартном режиме выглядит следующим образом. Заполняете полностью форму по последовательным этапам: адрес, способ доставки, оплаты, данные о себе. Советуем в комментарии к заказу написать информацию, которая поможет курьеру вас найти. Нажмите кнопку «Оформить заказ».
Оплачивайте покупки удобным способом. В интернет-магазине доступно 3 варианта оплаты:
- Наличные при самовывозе или доставке курьером. Специалист свяжется с вами в день доставки, чтобы уточнить время и заранее подготовить сдачу с любой купюры. Вы подписываете товаросопроводительные документы, вносите денежные средства, получаете товар и чек.
- Безналичный расчет при самовывозе или оформлении в интернет-магазине: карты Visa и MasterCard. Чтобы оплатить покупку, система перенаправит вас на сервер системы ASSIST. Здесь нужно ввести номер карты, срок действия и имя держателя.
- Электронные системы при онлайн-заказе: PayPal, WebMoney и Яндекс.Деньги. Для совершения покупки система перенаправит вас на страницу платежного сервиса. Здесь необходимо заполнить форму по инструкции.
Экономьте время на получении заказа. В интернет-магазине доступно 3 варианта доставки:
- Курьерская доставка работает с 9.00 до 19.00. Когда товар поступит на склад, курьерская служба свяжется для уточнения деталей. Специалист предложит выбрать удобное время доставки и уточнит адрес. Осмотрите упаковку на целостность и соответствие указанной комплектации.
- Самовывоз из магазина или склада. Когда заказ поступит на склад, Вам придет уведомление. Мы свяжемся с Вами, уточним время в которое можете приехать.
- Транспортной компанией. Доставим товар в любой город до двери. Заказ можно оплатить при получении.
Самовывоз - 1-2 дня
Доставка курьером - 2-3 дня
Ростов-на-Дону:
Самовывоз - 3-4 дня
Доставка курьером - 4-5 дней
Самовывоз - 4-5 дней
Доставка курьером - 6-7 дней
Воронеж:
Самовывоз - 2 дня
Доставка курьером - 2-3 дня
Самовывоз - 6-7 дней
Доставка курьером -8-9дней
Москва:
Самовывоз - Сегодня
Доставка курьером - 1-2 дня
Новинка! Автоматический топливный блок с латунной отделкой.
Линейка автоматических биокаминов имеет 7 вариантов типоразмеров, с дистанционным управлением и без. Также можно заказать устройство нужной длины по индивидуальному проекту.
Для консультации и заказа, Вы можете обратиться к нашим специалистам, позвонив по бесплатному номеру телефона 8(800)301-75-24








